Verona Housing
Verona Housing is a strategic vision to address the need for affordable housing and seniors housing in South Frontenac. The plan allows for a mix of housing types along Verona Street in the village of Verona that will appeal to a wide demographic to create a vibrant, bustling community. The units will primarily be available for seniors and families, with a mix of market rate units and affordable housing. No social housing units are planned for this project.
The land, two parcels of land in the Village of Verona with frontage on Verona Street, for the Verona Housing Project was acquired in early 2020. In 2021 Council supported the creation of a Master Plan. The plan was endorsed by Council in 2022 with direction to undertake required next steps for the servicing of the site.
In the 2024 Budget, Council approved funding for an architectural design and project management consultant (RAW designs) that would prepare site plans and tender drawings based in part on the recommendations of the Master Plan, as well as supplementary studies and market research that continues to be collected. In 2024, the Water and Wastewater Study for the Verona Housing Plan was presented. To learn more about the Water & Wastewater servicing information, please visit the Verona Housing Water & Wastewater Study page on EngageFrontenac.
In 2025, Township staff and various contractors initiated several studies and assessments of the land were completed. The well for the communal water services was dug late in the year. Communal services are shared drinking water and wastewater systems that service clusters of residences and businesses. In 2026, we will design and place the water and wastewater treatment centre, and construction on the site will begin.

There are two renderings of the buildings available.

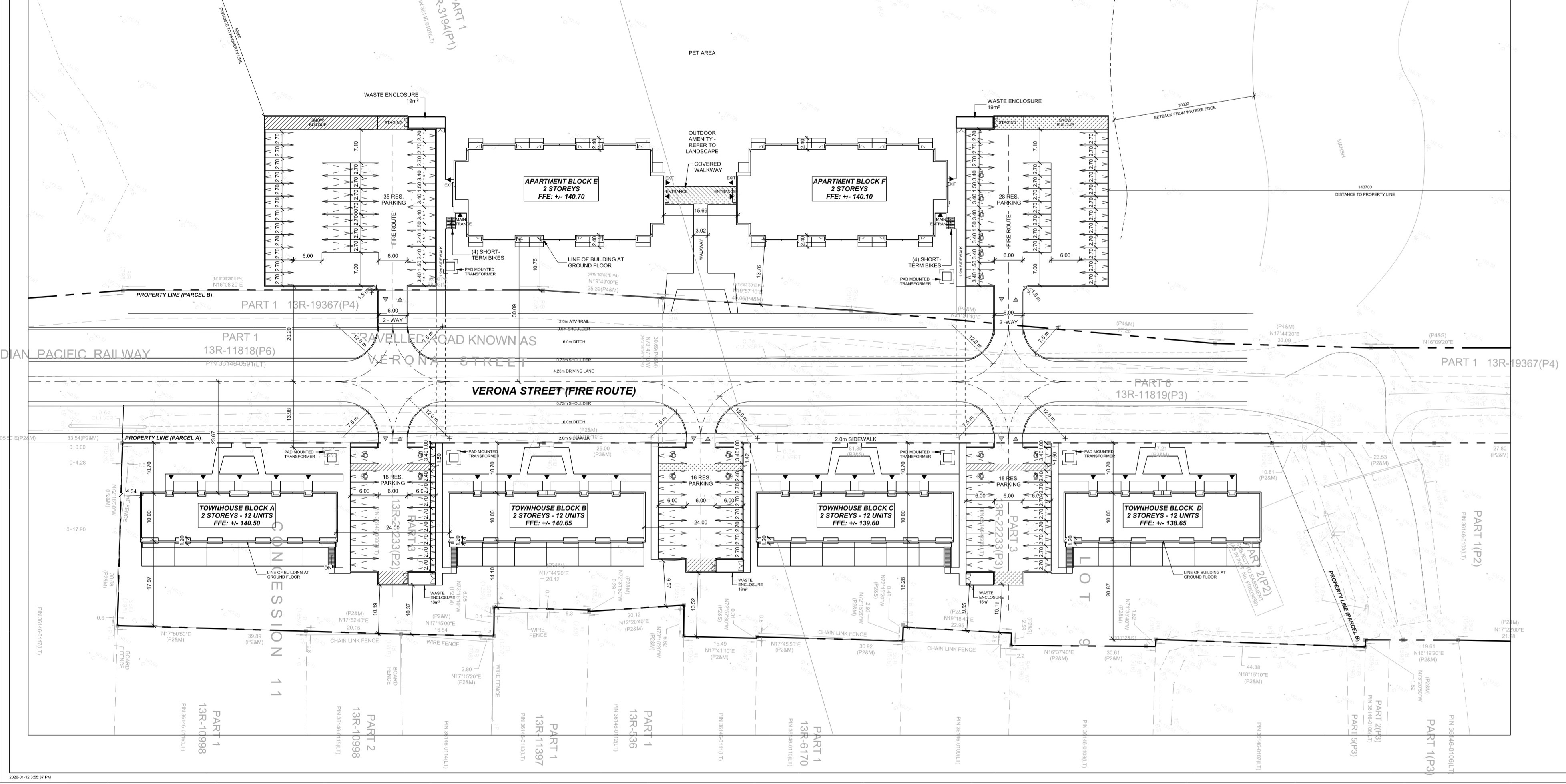
The townhouses proposed for Parcel A, the east side of Verona Street, will feature an equal number of one and two bedroom units. The total number of units proposed is 48. The building as a whole will be approximately 108,794 sq.ft. The units will not be on market as social housing.
The apartment complex for Parcel B, on the west side of Verona Street, will offer 44 units. It will have an equal number of one bedroom and two bedroom units. The average unit size of the units is 650 sq.ft. The complex as a whole will be approximately 964,759 sq.ft. The units will not be on market as social housing.
This is the proposed layout of the entirety of the project:
On February 10, 2026, (7:00 pm) a public meeting was held during the Council meeting to hear public comments on the Township's application for a zoning by-law amendment. The purpose of the proposed by-law is to change the zones on the properties from Rural (RU) and Urban Residential - First Density (UR1) to Urban Multiple Residential (UMR). The UMR zones would be site-specific to address building type, lot area, building setbacks, and minimum parking requirements. The decision for the by-law amendment will be made at a future Council meeting where a full planning option will be presented for approval. All future meetings dates will be posted here and on social media.
In 2026, before construction begins, the Township will host a groundbreaking ceremony in Spring of 2026. Renting information and development of the tenant selection process for the units will not be available until late 2026.
It is anticipated that in 2027, construction will continue and the communal water and wastewater system will be operational.